集团业务
- 科好国际教育
实验室设计
-
实验室设计
设计流程装修设计布局设计仪器摆放自控设计排气设计 消防设计空调设计排风设计排水设计气瓶设计 详细内容
-

实验室气瓶安全设计
实验室用气危险而复杂,针对不同实验室,应对气体从布局、分类、消防、配电等方面作专门考虑。 详细内容
-

实验室给排水系统设计
实验室给水系统选择是根据科研、生产、生活、消防等方面用水对水质、水温、水压和水量的要求,结合室外给水系统等因素,从技术经济指标上确定用水定额、水压、水质、水温及用水条件等工艺要求。实验室水管由土... 详细内容
-

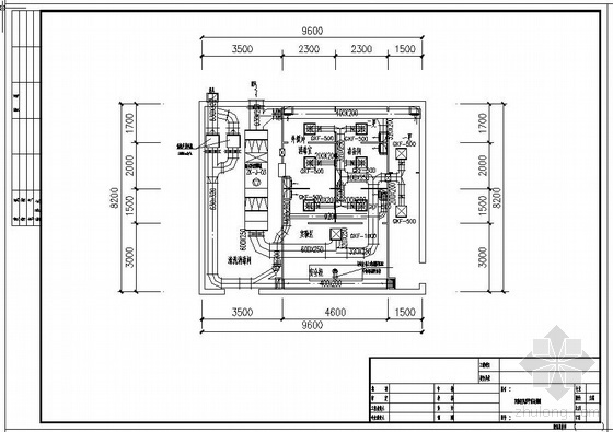
实验室供排风系统设计
供排系统完善的实验室,是一 实验室供排风系统是整个实验室设计和建设过程中规模最大、影响最广泛的系统之一。供排风系统完善与否,直接对实验室环境、实验人员的身体健康、实验设备的运行维护等方面产生重... 详细内容
-

实验室暖通系统设计
实验室暖气、通风、空调系统设计原则 通用实验室的夏季空气调节室内计算参数为:温度26~28℃,相对湿度小于65%。专用实验室的空气调节室内计算参数应按工艺要求确定。空调系统的主要作用是控制实验室的温湿... 详细内容
-

实验室消防系统设计
实验室是一个特殊环境,对消防的要求相对于普通的办公楼来说要高很多。实验室设计人员要根据实验室的具体情况(设备投资及工艺特点、实验工艺要求、储存样品和试剂的种类、实验室建筑物的特点等),采用不同的消... 详细内容
-

实验室排气设计
实验室的很多设备的运行都需要各种各样的气体供应,同时也会产生废气。如何既安全又方便地解决供排气问题,也是一直以来困扰实验室工作人员的问题之一。传统的实验室供气方式是采用将气瓶安置在仪器设备的旁边,... 详细内容
-

高精密实验室设计
一、基础配置 一个实验室的建设首先就是根据现场建筑、环境条件以及用户需求初步定下实验室各分区布置以及气流组织形式。 一般来说,实验室的主要功能区分别为“环境控制设备区”、“实验操作区”、“... 详细内容
-

实验室仪器摆放的原则
仪器摆放的设计是一个实验室设计中的重点和难点之一。实验仪器的摆放看似简单,可实际上需要考虑的因素非常多。实验仪器是否可以良好安全地运行,是否可以妥善地得到保护,是否可以将环境对其的影响度降到最低,... 详细内容
-

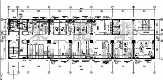
实验室布局设计
1.整体布局设计: 原则是满足实验室工作流程的优化及日常管理等方面的需要。设计主要考虑实验室的工艺流程、特殊实验室和功能间的位置选择、建筑物内上层和下层的具体环境、建筑结构等因素。 设计人员需... 详细内容
-

实验室装修设计
实验室整体装修设计方案 1.整体设计以淡雅、清新色调为主,简约、自然、时尚、高档融为一体,不仅可以体现现代实验室的功能要求,而且极大的满足了人体工程学的规范。在实验室功能隔断时,尽可能减轻建筑楼板的承... 详细内容
-

实验室流程设计
一、实验室的分类 实验室设计应考虑实验室的性质和要求规范,划分为科研类实验室,企业研究类实验室,高校教育类实验室。首先,在实验室的分类上,科研院校、工厂、特殊行业研究机构有不同的性质,实验室的规划... 详细内容
-
实验室设计
非常抱歉,网站正在建设中······ 详细内容